Andreas Benischke, August 2013
Im Rahmen der Masterthesis mit dem Titel „Transformationskonzept Weserburg“ wurde ein Entwurf zur baulichen und konzeptuellen Sanierung des Bremer Museumskomplexes Weserburg erarbeitet.
Das als Weserburg bezeichnete Speichergebäude wurde Ende des 19. Jahrhunderts als Kopfgebäude des Bremer Teerhofes erbaut und wurde bis in die 1970er Jahre als Kaffeerösterei genutzt. Heute beherbergt das Gebäude eines der größten Sammlermuseen Europas, einen Kunstverein sowie das weltweit renommierte Studienzentrum für Künstlerpublikationen. Eine Anfang 2013 entbrannte Diskussion über einen möglichen Wegzug des Sammlermuseums in einen Neubau endete in einer öffentlichen Kontroverse, die den Entschluss nach sich zog das Bestandsgebäude zu sanieren. Teil der anstehenden Sanierung soll vor allem die Reduzierung der Ausstellungsfläche des Sammlermuseums sowie die Installation modernen haustechnischer Gebäudeanlagen sein.
Ziel des studentischen Entwurfs ist es Möglichkeiten aufzuzeigen, wie eine Sanierung als Chance genutzt werden kann das kulturelle Zentrum Weserburg im Herzen Bremens zu stärken. Bei der Bearbeitung wurde auf zwei der vielschichtigen Entwurfsziele besonderes Augenmerk gelegt.
Anfänglich wurde in Form von Interviews hinterfragt, welche Wünsche und Forderungen bei den jetzigen Nutzern vorliegen und wie sich diese in einem zukunftsweisenden Entwurfskonzept wiederfinden können. Ergebnisse hieraus waren der qualitative Erhalt der Raumsituation für den Kunstverein, die Verdopplung der Büro- und Lagerflächen des Studienzentrums und die Verkleinerung der Ausstellungsfläche des Sammlermuseums.
Ein weiteres Entwurfsziel besteht darin, respektvoll aber entschieden mit dem Bestandsgebäude und den damit einhergehenden Entwurfsentscheidungen vorangegangener Planer zu arbeiten. Hierzu mussten Entwurfsregeln des Architekten Johannes Rippe, nach dessen Plänen die Weserburg im 19. Jahrhundert errichtet wurde, und der Architekten, die für den Umbau in ein Kunstmuseum verantwortlich waren, analysiert werden. Mit diesem Verständnis konnten alte Entwurfsziele aufgegriffen und weitergeführt oder neuinterpretiert werden.
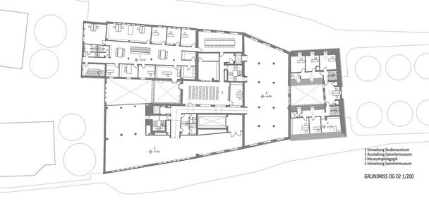
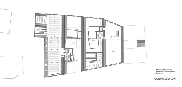
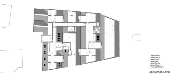
Im Ergebnis wurden, die Gebäudekubatur betreffend, Veränderungen im Bereich der bestehenden Eingangspassage und ab dem dritten Obergeschoss an der zur großen Weser zugewandten Fassade vorgenommen. Die mitunter abweisend wirkende Passage wurde durch neue, klar definierte Eingangssituationen, einen großen Lichtschacht und eine Öffnung zur kleinen Weserseite ergänzt. Weiterhin ist eine Lichtinstallation vorgesehen, die sich, an Wand und Decke angebracht, einen Weg durch das Gebäude bahnt und in einem, drei Stockwerke hohen, sich der großen Weser öffnenden Außenraum mündet. Im Inneren des Gebäudes wurden große Teile der Bestandsflächen umstrukturiert, geordnet und ergänzt. Den Nutzerwünschen entsprechend, wurden dem Studienzentrum für Künstlerpublikationen großflächige Archive und eigene Ausstellungsflächen zugeordnet. Das Sammlermuseum wurde um etwa die Hälfte seiner Ausstellungsräume reduziert, erhält hierfür aber Räume, die ein besseres Raumgefüge und eine Vielzahl an Raumatmosphären bilden. Die Räume des im Erdgeschoss befindlichen Kunstvereins wurden geringfügig durch das Einbringen eines Lastenaufzuges verändert und durch einen barrierefreien Eingang ergänzt.
In the context of the Master’s Thesis titled „Transformationskonzept Weserburg“ a conceptual design concerning the constructional and conceptual redevelopment of the Bremen museum complex “Weserburg” was compiled.
The storage building called “Weserburg” was built at the end of the 19th century as the south-easternmost building of the Bremen “Teerhof” and was used as a coffee roasting facility. Today the building accommodates one of the largest collectors’ museums in Europe, an art association as well as the world-wide renowned research centre for artists’ publications. At the beginning of the year 2013 a discussion broke out about the possible move of the collectors’ museum into a new building and ended in a public controversy resulting in the decision to redevelop the existing building. Part of the redevelopment at issue shall especially be the reduction of the exhibition space of the collectors’ museum as well as the installation of modern building equipment.
The aim of the collegiate design is to show possibilities how the redevelopment can be used as a chance to strengthen the cultural centre “Weserburg” in the heart of Bremen. Attention was especially turned on two of the complex objectives.
Initially interviews were conducted in order to scrutinize the present users’ wishes and demands and in which ways these can be realized in a forward-looking design concept. Results were the qualitative preservation of the space situation for the art association, the duplication of the office and storage areas for the research centre and the reduction of the exhibition space of the collectors’ museum.
Another objective is to work respectfully but decisively on the existing building and the involved decisions concerning the designs of the preceding planners. In order to do so the rules of planning of architect Johannes Rippe according to whose plans the “Weserburg” was constructed in the 19th century and of the architects responsible for the remodeling had to be analyzed. Considering that old objectives could be adopted and continued or newly interpreted.
As a result alterations regarding the cubature of the building could be carried out in the area of the existing entrance passage and from the 3rd floor on at the façade overlooking the “große Weser”. The occasionally uninviting appearing passage was completed by new clearly defined entrance situations, a big light well and an opening facing the side of the” kleine Weser”. Furthermore the installation of lights is planned which placed on the walls and the ceiling channel through the building and end in a three storey high outdoor space opening towards the “große Weser”. Inside the building large parts of the existing area were reconstructed, arranged and completed. According to the wishes of the users the research centre was provided with extensive archives and own exhibition spaces. The collectors’ museum was reduced to about half of the exhibition space but in exchange receives rooms which form a better arrangement and a multitude of atmospheres. The rooms of the art association which are situated on the ground floor were slightly altered by the installation of a goods elevator and the addition of a barrier-free entrance.
Modellstudien
Untere Passerelle mit den Hauszugängen
Blick vom Skulpturengarten im 3. OG in die unteren Geschosse
Der zur Weser geöffnete Skulpturengarten
